Progetto Farmacia
Now Progetto Farmacia (servizi trade marketing) Acquainbrick (produttore di brick per acqua da passeggio) da tempo lavora su progetti per una “farmacia sostenibile” vogliamo che la farmacia sia un presidio di salute in tutti i sensi e che affronti con i suoi clienti/pazienti e dipendenti percorsi di prevenzione e salute.
						
					
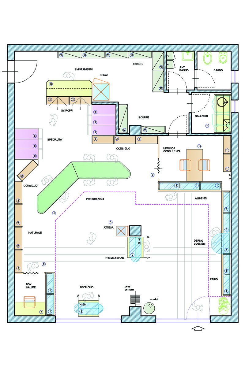
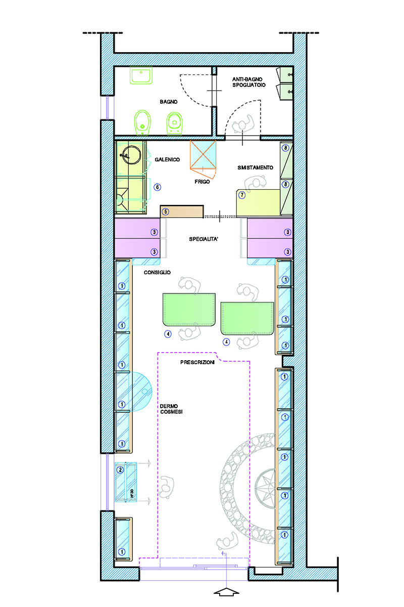
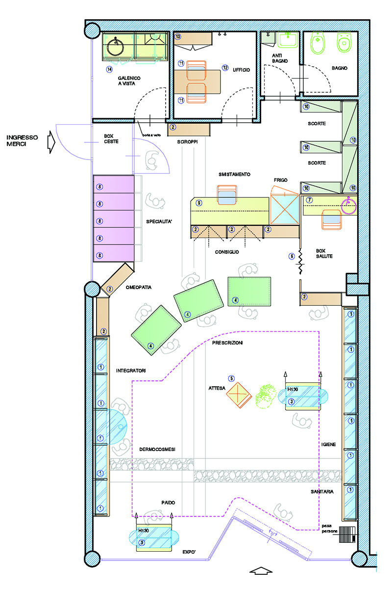
Progetto farmacia. LASCIA I TUOI CONTATTI, TI RICONTATTIAMO NOI!. Arredo Farmacia mq 60 Arredo Farmacia mq 173 Arredo Farmacia mq 78 Arredo Farmacia mq 52 Arredo Parafarmacia con galenico 100 mq Arredo Parafarmacia 100 mq Arredo Parafarmacia 63 mq SEI INTERESSATO?. Renderizzazione di progetto per farmacia;.
Le nostre coordinate Sede Operativa/Showroom Via Leo Sorteni, 7, 900, Monza (MB)Sede LegaleVia Trezzo D’Adda, 3, 144, Milano Contatti 📞 039 22 935 📧 info@nowfarmaciacom Social Facebook Instagram LinkedIn Iscriviti alla nostra newsletter. Progetto Farmacia è il partner completo e innovativo per la gestione di ogni farmacia All’interno della sua struttura dispone di tutte le competenze e delle professionalità necessarie per analizzare, allestire, costruire e condurre una farmacia con sistemi ottimizzati, spazi valorizzati e tutti gli adempimenti e le norme di legge rispettate. Nominativo Indirizzo di posta elettronica.
🟢 Vi abbiamo già parlato di questa farmacia, interamente progettata dagli specialisti di Now Questi giorni di neve non hanno fermato i lavori!. Traducono la strategia commerciale di posizionamento della farmacia mediante lo studio ed il progetto di visual merchandising. Non vediamo l'ora di farvi vedere il risultato finale 😁, ma dovrete aspettare ancora un pochino Continuate a seguirci per le novità!.
PIVA/CF Iscrizione imprese Iscritta alla CCIAA Metropolitana di MilanoMonzaBrianzaLodi REA MI Capitale Sociale Euro ,00 IV. Progetto Farmacia 64 likes Pensiamo, progettiamo, costruiamo e ti aiutiamo a gestire la tua nuova farmacia!. Now Progetto Farmacia è un team di professionisti che operano nel mondo della farmacia applicando strategie di Visual Merchandising che massimizzano la redditività dello spazio espositivo analizzando gli assortimenti;.
Il progetto della farmacia San Rocco (Montecchio Precalcino, VI) prende forma, anzi, colore!. La filosofia di ideazione è applicata a tutte le tipologie di locali e di tutte le dimensioni La nostra filosofia progettuale parte da concetti semplici che si esplicitano nell’allestimento nelle varie aree di intervento la scelta delle luci è fondamentale. Informativa Questo sito o gli strumenti terzi da questo utilizzati si avvalgono di cookie necessari al funzionamento ed utili alle finalità illustrate nella cookie policy.

Farmacia Folegotto Progetto Farmacia Farmacia Progettazione Design

Al Via Il Progetto Delle Farmacie Di Strada Farodiroma

Contract Farmacie Arredamento E Progetto Chiavi In Mano
Progetto Farmacia のギャラリー

Progetto Farmacia Storelli Chiusi Interarredo Divisione Farmacie

Progetto Farmacia Vista Bancone Marco D Andrea Architettura Interior Design Milano

Progetto Farmacia Mq 92 Komar By Afk Arredamenti Per Farmacie

Progetto Farmacia Roma Nuove Forme Srl

Progettazione Arredamento Farmacia Italia Taranto Puglia

Visual Merchandising E Stagionalita Consigli Per I Farmacisti Now Progetto Farmacia

M Cristina Cippone Architetto Progetti

Progetto Farmacia Roma Nuove Forme Srl

Progetto Per Progetto Farmacia Bellagamba

Progetto Farmacia Roma Nuove Forme Srl
Studio Sagitair Architettura Interior Design Render Progetto

Progetto Farmacia Sartori Breganze Vi Edilfarma Srl

Farmacia Alfani Sorrento Mobil M Progetto Farmacia Comunicazione 8 Mobil M

Progetto Farmacia Olivato Vr Youtube

Nuova Farmacia Arredo E Progetto Danu Arredamento Farmacie E Negozi

Progetto Farmacia Industria Farmaceutica Prodotti Farmaci Medicine Illustrazione 3d Bim Buy This Stock Illustration And Explore Similar Illustrations At Adobe Stock Adobe Stock

Home Progetto Farmacia

Home Progetto Farmacia

Dsc 0073 Progetto Farmacia

Farmacia Di Comunita Cossolo Carignato Torino Mobil M Progetto Farmacia 5 Mobil M

Farmacia Molecure Taichung Taiwan An Shopfitting Magazine

Campagne Di Tutela Della Salute Si Chiude Il Progetto Farmacia Dei Servizi Umbria24 It

Nuova Farmacia Comunale Approvato Il Progetto Nonsolocontro Ora Anche Online

Piantine Costi Di Progetti Tipo Per Farmacie E Parafarmacie

Progetto Farmacia Bianco E Rosso Marco D Andrea Architettura Interior Design Milano

Progetto Farmacia Partenon Madrid An Shopfitting Magazine

Farmacia Pagnucco Progetto Farmacia Progettazione Farmacia Interior Design

Progetto Farmacia Industria Farmaceutica Prodotti Farmaci Medicine Illustrazione 3d Bim Buy This Stock Illustration And Explore Similar Illustrations At Adobe Stock Adobe Stock

Farmacia Le Reggiane Progetto Farmacia Reggio Emilia Progettazione Interior Design

Farmacia Alfani Sorrento Mobil M Progetto Farmacia Comunicazione 3 Mobil M

Progetto 03 Afk Arredamenti Per Farmacie E Parafarmacie

Home Progetto Farmacia

Decolla Il Progetto Farmacia Dei Servizi Valledaostaglocal It

Progetto Farmacia Mq 110 Komar By Afk Arredamenti Per Farmacie

Progetto Farmacia Mq 55 Komar By Afk Arredamenti Per Farmacie

Farmacia Ba Marco D Andrea Architettura Interior Design Milano

Farmacia Ba Marco D Andrea Architettura Interior Design Milano

Il Progetto Farmacia Centrale Su Retail Design Blog Amlab

Dsc 0043 Progetto Farmacia

Home Progetto Farmacia

Casa Facile Architetto Marco D Andrea Progetto Farmacia Tda

Farmacia La Pietra San Severo Fg Staff3 Arredamenti Farmacie

Progetto Farmacia Di Quartiere 18 Deliberazione Della Giunta Comunale Giornale Nisseno

Progetto Farmacia Dei Servizi A Giugno In Umbria Parte I Love Life Umbria24 It

Case History Ekofarma La Farmacia Stornelli Progettazione Di Arredi Per Farmacie

Progetto Farmacia Mq 75 Komar By Afk Arredamenti Per Farmacie

Farmacia Rossi Progetto Farmacia Farmacia Interni Di Negozio Espositori

Progetto Farmacia Partenon Madrid An Shopfitting Magazine

Farmacia Pagnucco Progetto Farmacia Farmacia Interior Design Design
Komar By Afk Arredamenti Farmacie Home Facebook
Progetto Farmacia Srl Linkedin

Progettazione Farmacie Arredamenti E Allestimento Per Farmacie E Negozi

Farmacia Sant Agata Casnate Con Bernate Co Now Progetto Farmacia

Nuovo Progetto Farmacia Casale Caletto

La Comunicazione In Farmacia Al Centro Del Progetto Di Rinnovamento

Home Progetto Farmacia

Progetto Farmacia Danu Arredamento Farmacie E Negozi

Home Progetto Farmacia

La Farmacia Castellaneta A Taranto Arredamenti Farmacie E Parafarmacie Sartoretto Verna Srl

Come Si Progetta Una Farmacia La Guida Tecnica Biblus Bim

Render Di Progetto Farmacia Komar By Afk Arredamenti Per Farmacie

Progetto Farmacia L Invenzione Dello Slow Corner Youtube

Farmacia Rossi Progetto Farmacia Farmacia Progettazione Vetrine

Progetto Per La Farmacia Beatriz Domenech Di Valencia An Shopfitting Magazine

Progetto Farmacia Roma Nuove Forme Srl

Farmacia Rossi Progetto Farmacia Farmacia Progettazione Espositori

Now Progetto Farmacia Autore Presso Now Progetto Farmacia

Home Progetto Farmacia

Home Progetto Farmacia

La Farmacia Morrica Di Marano Presenta Il Progetto Farmacia Oncologica Terranostra News

Home Progetto Farmacia
Now Progetto Farmacia Linkedin

Parafarmacia Progetto Farmacia Interior Design Design Espositori

Farmacia Biffi Pharmacavigar

Progetto Respira Alla Farmacia Comunale La Quercia A Viterbo Ontuscia Quotidiano Viterbo E Provincia

Mobil M A Ogni Farmacia Il Suo Progetto Architettonico E Di Layout

Progetto Farmacia Roma Nuove Forme Srl

Alassio Arriva Il Progetto Farmacia A Domicilio Savonanews It

Come Si Progetta Una Farmacia La Guida Tecnica Biblus Bim

Progetto Farmacia Sanchis An Shopfitting Magazine

Allestimento Farmacia Visual Merchandising Progetto Farmacia Allestimento Progettazione Visual Merchandising

Farmacia Botti Progetto Farmacia Interior Design Farmacia Progettazione

Farmacia Scollo T Arredo

Farmacia Le Reggiane Progetto Farmacia Progettazione Reggio Emilia Interior Design

Aderenza Terapeutica La Promozione Passa Dalla Farmacia Grazie Al Progetto Farmacia Di Valore Farmacia News

Progettare Farmacie Parafarmacie E Arredamenti Farmaforniture

Progetto Farmacia Partenon Madrid An Shopfitting Magazine

Home Progetto Farmacia

Progetto Per La Farmacia Beatriz Domenech Di Valencia An Shopfitting Magazine

Farmazero Un Progetto Per La Farmacia Del Futuro Pharmaretail

Progetto Farmacia Mq 90 Komar By Afk Arredamenti Per Farmacie

Progetto Farmacia Oncologica

Progetto Farmacia 2 0
Q Tbn And9gcqsew Zkuz9njid9uignspp5gmyy1vrj9ggqxdppq2cciktsqjq Usqp Cau

Promozioni Komar By Afk Arredamenti Per Farmacie

Home Progetto Farmacia

Progetto Per Progetto Farmacia Altos
Focus On Project Farmacia Rossi Falze Progetto Farmacia


        
